Kantoor
€ 1.250

Gulden-Vlieslaan 39, 8000 Brugge
    • delen

Omschrijving Ref.: 7234237

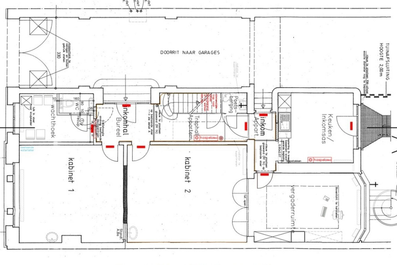
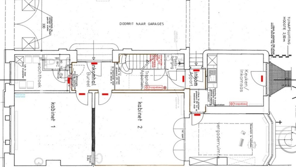
Instapklare gerenoveerde kantoorruimte van 110m².


Instapklaar en luxueus gerenoveerde kantoorruimte, gelegen op het gelijkvloers van een neorenaissance-getint breedhuis uit 1912, opgenomen in de Inventaris van het Bouwkundig Erfgoed als Beschermd Monument. Indeling: imposante inkom met vestiaire/wachtzaal en toilet. Drie grote aparte ruimtes waarvan één met een schitterend loodglas in het plafond. Kleine ingebouwde keuken in lichtrijke kamer, met toegang tot de tuin. Tuin met vijvertje en terras. Garagebox achter het gebouw inclusief. Interieur helemaal of deels over te nemen. Vrij op 01/08/2025. Prijs: € 1.250,00/maand. Voor meer inlichtingen of een bezoek ter plaatse gelieve contact op te nemen met ons kantoor.


Uw contact

Vragen over deze eigendom ref: 7234237
contact

Details van het pand

Financieel

Prijs
€ 1.250,00/maand
Beschikbaarheid
Onmiddellijk
Huurgarantie
6 maanden
Vrij beroep mogelijk
Ja

Ligging

Buurt
Centraal, nabij station
Winkels nabij
250m
Openbaar vervoer nabij
10m
Autosnelweg nabij
500m

Gebouw

Oppervlakte
110,00 m²
Aantal gevels
3
Bouwjaar
1912
Renovatiejaar
2010
Staat
Nieuw
Oppervlakte hoofdgebouw
382 m²
Type dak
Zadeldak
Oriëntatie voorgevel
Zuidwesten

Terrein

Oriëntatie terras 1
Zuidoosten

Parkeermogelijkheden

Garage
1
Parkings buiten
Ja
Parkings binnen
Ja

Indeling

Keuken
Ja, volledig geïnstalleerd
Toiletten
1
Kelder
Ja

Comfort

Gemeubeld
Nee
Handicapvriendelijk
Ja
Lift
Nee

Energie

EPC
EPC unieke code
20220208-0002541246-KNR-1
Dubbele beglazing
Ja
Ramen
Hout
Elektriciteitskeuring
Ja, conform
Type verwarming
Gas cv
Verwarming
Individueel

Technieken

Elektriciteit
Ja
Telefoonbekabeling
Ja
Riolering
Ja
Gas
Ja
Water
Ja

Meer info over deze eigendom

Bedankt voor je bericht, we contacteren je zo spoedig mogelijk.
Er was een probleem bij het versturen van het formulier, gelieve opnieuw te proberen.
U moet de algemene voorwaarden aanvaarden om dit bericht te kunnen verzenden
(*) Gelieve de verplichte velden in te vullen.